中文版
English
首页
关于我们
产品展示
新闻动态
在线留言
联系我们
1
2
3
产品分类
蝶阀
法兰蝶阀
工业蝶阀
卡箍蝶阀
螺纹蝶阀
止回阀
闸阀
球阀
截止阀
Y型过滤器
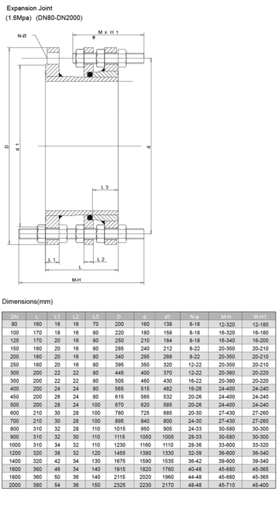
伸缩节
蝶阀专用法兰
阀门配件
新闻资讯
河北远丰阀门有限公司
地址:河北省邢台市大曹庄管理区南镇
电话:86-319-5567317
传真:86-319-5567338
当前位置:
首页
>
产品中心
>
伸缩节
伸缩节
详细介绍
产品参数
在线询盘
询价产品 :
*
产品数量 :
询价说明 :
联系人 :
*
公司名称 :
地址 :
电话 :
传真 :
E-mail :
*
网址 :
MSN :
验证码 :
*