Products
News
HEBEI YUANFENG VALVE CO.,LTD
Address:Big Cao Zhuang Administrative Zone,Xingtai City,Hebei,China
Tel:86-319-5567317
Fax:86-319-5567338
You are here: Home > Products > Expansion Joint
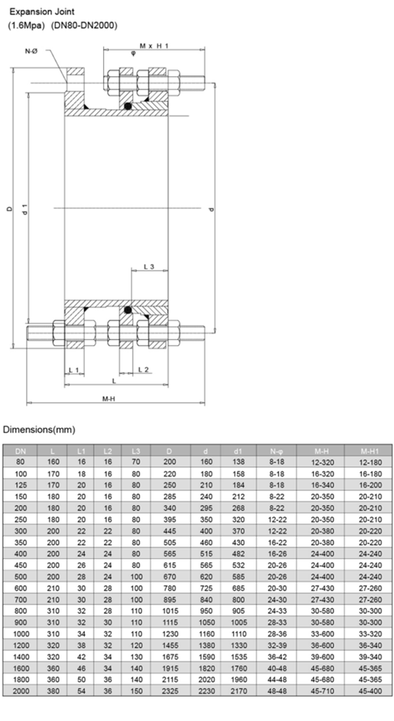
Expansion Joint
Expansion Joint
IntroductionOnline Inquiry
  •  
  •  
  •